PS Elite Construction LLC, a trusted general contractor serving New Jersey, is currently completing a full residential addition and interior renovation at 261 Short Hills Avenue in Springfield Township, Union County. This project highlights our ability to deliver high-quality home transformations on accelerated timelines without compromising craftsmanship or compliance.
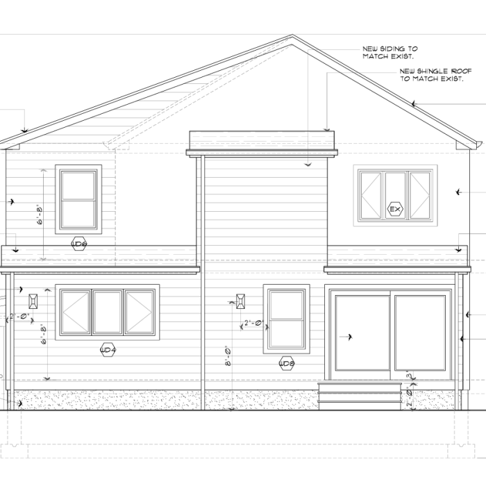
The scope includes both front and rear additions, along with a new concrete foundation and full structural framing. A complete roofing system integrated with the existing structure, along with new siding, 13 new windows, and a composite front porch deck, enhances both the durability and curb appeal of the home.
Inside, the property is undergoing a complete interior renovation, including a modern kitchen remodel, construction of a new master bathroom, a new first-floor common bathroom, full flooring replacement, installation of eight new interior doors, stair and railing upgrades, and complete drywall finishing throughout the home.
In addition, the project includes installation of new HVAC systems, full plumbing rough-ins, electrical panel upgrades, and attic insulation to meet REScheck energy code compliance. Through efficient coordination and overlapping of trades, roofing, siding, and MEP work progressed simultaneously with framing—allowing the project to be completed within an aggressive 65-day schedule.
Location Springfield Township, New Jersey
Status Completed
Service Residential Addition & Full Home Renovation
Sectors Residential
Timeline 65 Days
Client Private Homeowner





PS Elite Construction LLC managed the entire construction lifecycle, ensuring smooth coordination between all trades and maintaining strict adherence to scheduling, safety, and quality standards. The fast-track nature of this project required precise planning and execution at every phase.
Our ability to run multiple construction activities concurrently without sacrificing workmanship demonstrates our efficiency and deep experience in residential construction. Each phase was carefully monitored to ensure compliance with local building codes and industry standards.
The project was successfully completed on time and delivered to the owner with full compliance with Springfield Township building codes and New Jersey Home Improvement Contractor regulations—reinforcing our commitment to reliability, performance, and client satisfaction.
Front and rear additions were constructed with new structural framing and seamlessly integrated roofing, ensuring long-term durability and architectural consistency.
The home features a fully upgraded interior, including a modern kitchen, new bathrooms, flooring, doors, and detailed finish work throughout.
New HVAC systems, plumbing infrastructure, and electrical upgrades were installed to improve efficiency, safety, and performance.
Attic insulation and system upgrades were implemented to meet REScheck energy standards, enhancing overall energy efficiency and sustainability.
New siding, windows, and a composite front porch deck improve both aesthetics and functional value of the property.