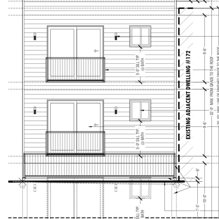
The project includes full structural reconstruction along with vertical and horizontal expansions to create a modern multi-family layout. The principal structure will be transformed into two spacious duplex units designed for comfortable, high-end living.
Unit 1 will include 3 bedrooms, 3 bathrooms, a dedicated office, terrace, and recessed patio across approximately 1,429 sq. ft. Unit 2 will feature 4 bedrooms, 4 bathrooms, an office, balconies, and a rooftop deck across approximately 2,224 sq. ft.
In addition, a new detached two-story ADU is being constructed at the rear of the property, adding approximately 533 sq. ft. of fully functional and code-compliant living space.
The project also includes complete integration of HVAC systems, plumbing upgrades, and independent electrical services for each unit, ensuring efficiency, comfort, and long-term performance.
Location Jersey City, New Jersey
Status In Progress
Service Multi-Family Reconstruction, ADU Construction
Sectors Residential / Multi-Family
Area 4,576 sq. ft.
Client: Private Client





PS Elite Construction LLC is managing the entire construction lifecycle at 170 Lincoln Street — from demolition and structural rebuilding to system coordination and interior finishing.
This project reflects our commitment to delivering high-performance residential spaces through careful planning, expert execution, and strict adherence to building codes and safety standards.
The project begins with controlled selective demolition followed by full structural rebuilding to support the new development. Reinforced framing and engineered materials ensure long-term stability, safety, and compliance with modern construction standards.
The principal building is expanded and reconstructed to accommodate two luxury duplex units. Each unit is designed with spacious layouts, including multiple bedrooms, bathrooms, offices, and premium living areas tailored for modern multi-family living.
A new detached two-story ADU is being constructed at the rear of the property, adding additional code-compliant living space. This structure is designed for functionality, privacy, and seamless integration with the main development.
The project includes private terraces, balconies, a rooftop deck, and a recessed patio. These features enhance outdoor usability while adding aesthetic value and increasing overall property appeal.