PS Elite Construction LLC, a trusted general contractor serving Jersey City and the greater Hudson County area, has been selected to deliver the ground-up construction of a five-story, 14-unit mixed-use residential development at 81 Palisade Avenue. This project represents one of the company’s largest and most ambitious undertakings, showcasing our capability to execute complex, large-scale urban developments.
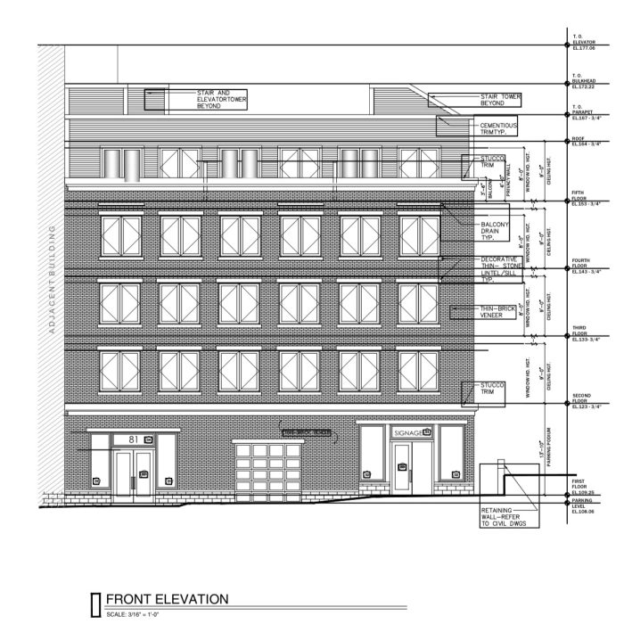
The project will transform a 7,954 square foot lot into a modern, high-density mixed-use property totaling approximately 28,018 gross square feet. Designed within the RC-2 zoning district, the development integrates residential and commercial spaces to maximize both functionality and long-term value for property owners and investors.
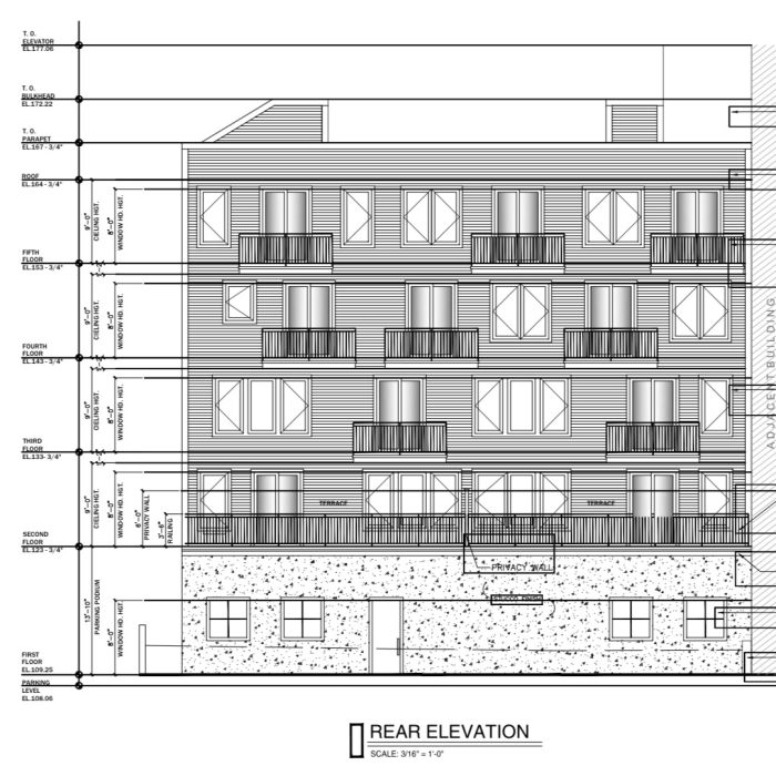
The building will feature a thoughtfully planned layout, including ground-floor commercial space, an 8-car parking garage, and 14 residential units. Floors two and three will include eight standard apartments, while floors four and five will house six spacious duplex penthouse units, offering a premium living experience in a prime Jersey City location.
Our scope of work includes full foundation construction, structural framing, rooftop amenity development, green roof installation, and complete site utility integration. Every aspect of the project is being executed with a focus on durability, efficiency, and strict compliance with New Jersey building codes.
Location Jersey City, New Jersey
Status Upcoming / In Progress
Service Ground-Up Mixed-Use Development
Sectors Residential / Commercial Mixed-Use
Area 28,018 sq. ft
Client Private Developer





PS Elite Construction LLC is managing the full construction lifecycle—from pre-construction planning and permitting to final delivery—ensuring seamless coordination across all phases of the project. Our team is committed to maintaining timelines, controlling costs, and delivering superior quality at every stage.
This development highlights our expertise in building high-performance multi-family properties that meet the demands of modern urban living. By combining efficient layouts, durable materials, and advanced construction practices, we create spaces that offer long-term value and livability.
With a strong focus on craftsmanship and compliance, PS Elite continues to be a trusted partner for developers seeking reliable execution of large-scale construction projects in Jersey City and across Hudson County.
The project includes robust foundation work and high-quality structural framing designed to support a five-story mixed-use building with long-term stability and performance.
A carefully designed ground floor incorporates commercial space and an 8-car parking garage, optimizing functionality and accessibility for both residents and businesses.
The building features rooftop amenity spaces along with a green roof system, enhancing sustainability, energy efficiency, and resident experience.
Exterior construction includes a full brick façade, metal fascia, fiber cement siding, stone lintels, and aluminum railings, delivering durability and a modern architectural aesthetic.
All site improvements are designed to meet ADA standards, ensuring accessibility, safety, and compliance with local regulations.