PS Elite Construction LLC, a trusted general contractor serving Jersey City and the greater Hudson County area, is currently delivering the ground-up construction of a four-story mixed-use building at the prominent corner of New York Avenue and Congress Street. This project reflects our expertise in urban infill development and full-service mixed-use construction within highly regulated zoning districts.
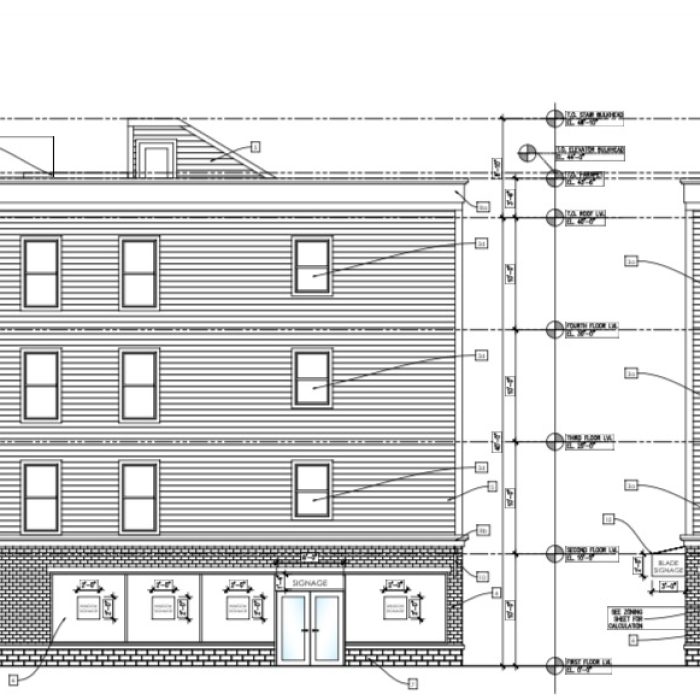
The development transforms a vacant corner lot into a modern, income-generating property designed for both commercial and residential use. The ground floor features approximately 941 square feet of retail space with expansive storefront glazing, creating strong street presence and visibility for commercial tenants.
Above the retail level, the building includes three full-floor residential units, each offering approximately 1,150 square feet of thoughtfully designed living space with three bedrooms and two bathrooms. The layout prioritizes comfort, privacy, and functionality while aligning with contemporary urban living standards.
Our team is managing the entire construction process from start to finish—including reinforced concrete foundation work, structural framing, façade installation, and full MEP (mechanical, electrical, and plumbing) systems. Every phase is executed in compliance with the 2021 New Jersey Building Code, ensuring durability, safety, and long-term value.
Location Jersey City, New Jersey
Status In Progress
Service Ground-Up Mixed-Use Construction
Sectors Commercial / Residential Mixed-Use
Building Type 4-Story Mixed-Use
Client Private Client


This project showcases PS Elite Construction LLC’s ability to handle complex ground-up developments in urban environments. From site preparation and permitting to vertical construction and finishing, our integrated approach ensures efficient coordination across all trades and disciplines.
We focus on delivering projects that not only meet regulatory requirements but also maximize property value and long-term performance. Attention to detail, scheduling precision, and quality control remain central to every stage of execution.
As a full-service general contractor, we provide end-to-end solutions for mixed-use construction—helping developers and property owners bring their vision to life with confidence and reliability.
The building is supported by a reinforced concrete foundation and high-quality structural framing, ensuring long-term strength, stability, and compliance with modern construction standards.
An extensive green roof covers over 60% of the roof area, improving energy efficiency and sustainability, while a dedicated rooftop deck provides functional outdoor space for residents.
The façade incorporates brick veneer and fiber cement siding, combined with energy-efficient wall assemblies to enhance durability, insulation, and aesthetic appeal.
The building includes fully independent infrastructure for residential and commercial spaces, ensuring operational efficiency, safety, and convenience for occupants.